Inspiration Syléa

La maison clé sur porte Syléa est conçue en une surface rectangulaire de 11m de long et 6,4m de large.

Au rez-de-chaussée, elle dispose d’un séjour salon/cuisine/salle à manger, d’une buanderie et d’un wc.

À l’étage, de 3 chambres dont une avec dressing et d’une salle de bain.

Sa surface habitable est de 141 m².

Fidèle à nos engagements, ce modèle inspirant associe durabilité et performances énergétiques de pointe.

Si cet avant-projet vous plaît, nous nous ferons un plaisir de l’adapter à votre mode de vie.

Cette maison à ossature bois vous inspire ?

àpd 235.000€ htva
Ce prix comprend
  • Les honoraires d’architecte, les frais de coordination de sécurité, la finition clé sur porte
  • L’étude énergétique du bâtiment, les honoraires responsable PEB
  • Le test d’étanchéité à l’air (blower door test)
  • L’étude de sol, conforme au cahier général des charges
Les points forts TOMWOOD
  • Prix fixe garanti
  • 1 seul contrat
  • Garantie Loi Breyne 100%
  • Main d’œuvre intégrée
  • Respect des délais
  • Un service après-vente
  • Un Groupe solide

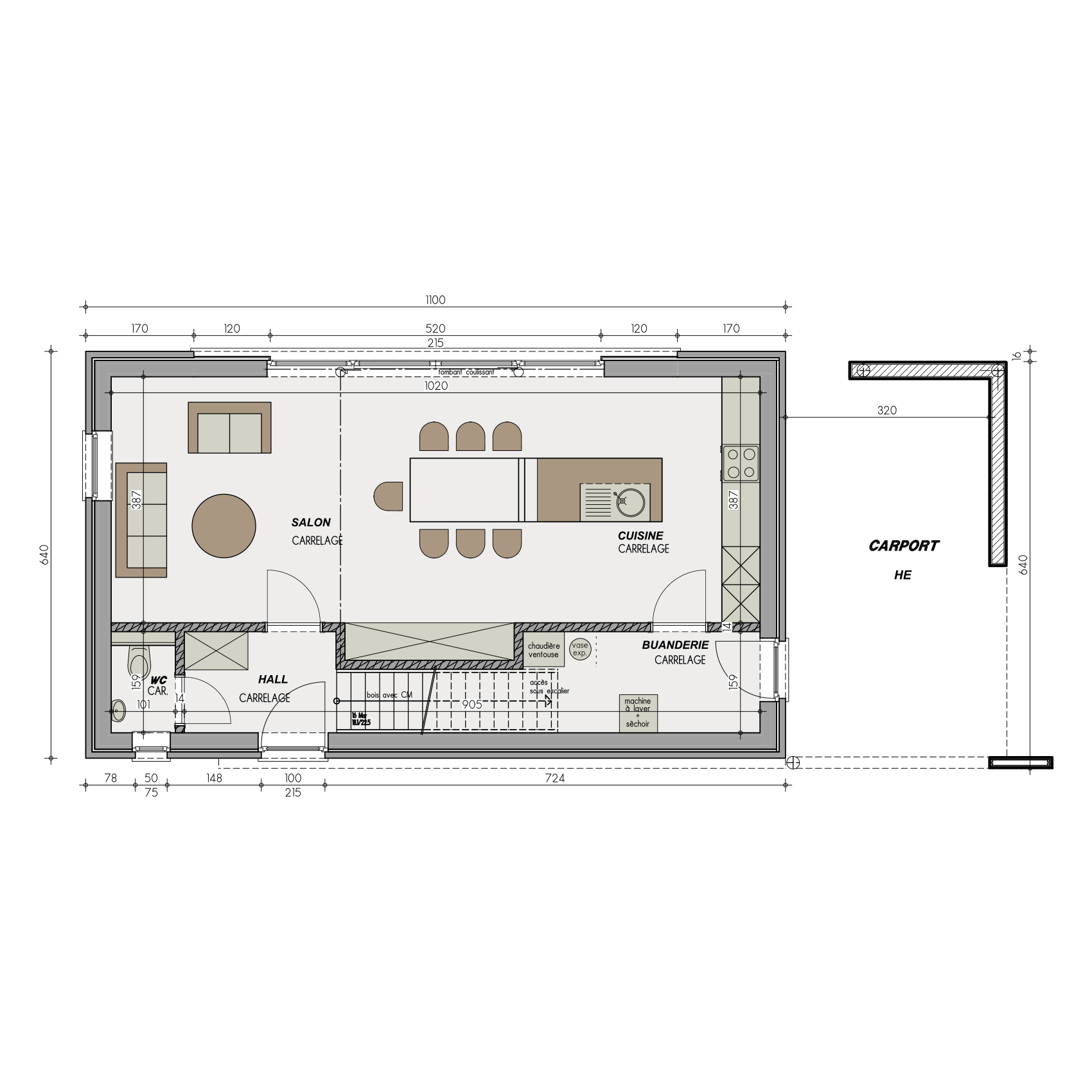
Visualisez les plans de votre maison d'inspiration SyléaCette maison clé sur porte à ossature bois est conçue avec l'agencement intérieur décrit sur ces plans. Avec l’aide d’un de nos conseillers, vous pouvez l'adapter à votre mode de vie et à votre budget.

Inspiration Syléa Plan rez-de-chausséeInspiration Syléa Plan rez-de-chaussée

Rez-de-chaussée

Inspiration Syléa Plan étageInspiration Syléa Plan étage

étage

Inspiration Syléa Plan façade avantInspiration Syléa Plan façade avant

Façade avant

tomwood-inspiration-sylea-plan-facade-arrieretomwood-inspiration-sylea-plan-facade-arriere

Façade arrière

tomwood-inspiration-sylea-plan-pignon-gauchetomwood-inspiration-sylea-plan-pignon-gauche

Pignon gauche

Inspiration Syléa Plan pignon droitInspiration Syléa Plan pignon droit

Pignon droit

Réalisations Tomwood

Nos maisons en bois “clés en main”
nos clients vous en parlent.
Nos maisons en bois “clés en main” nos clients vous en parlent.
"Reportage à Messancy"
Messancy
"Reportage à Limelette"
Limelette
"Reportage à Chiny"
Chiny
"Une maison qui raconte une histoire…"
Uccle
Venez ressentir le bien-être
d’une maison à ossature bois
dans notre maison expo
 
Maison expo de Braine-le-Comte
Prêts à vous lancer ?Évaluons ensemble les options qui s’offrent à vous

Vous souhaitez recevoir les plans de notre inspirationSyléa

FF - Tomwood PDF Inspirations
Avez-vous un terrain ?

*Champ obligatoire

Vous souhaitez nous contacter au sujet de notre inspirationSyléa

Avez-vous un terrain ?
*Champ obligatoire

Vous souhaitez recevoir les plans de notre inspirationSyléa

Avez-vous un terrain ?
*Champ obligatoire

Ma maison en Belgique

Dans quel pays souhaitez-vous construire votre maison Tomwood ?
Avez-vous un terrain ?
Quel est le sujet de votre demande ?
*Champ obligatoire