Inspiration Soléa

La maison clé sur porte Soléa est conçue en 2 surfaces rectangulaires imbriquées.

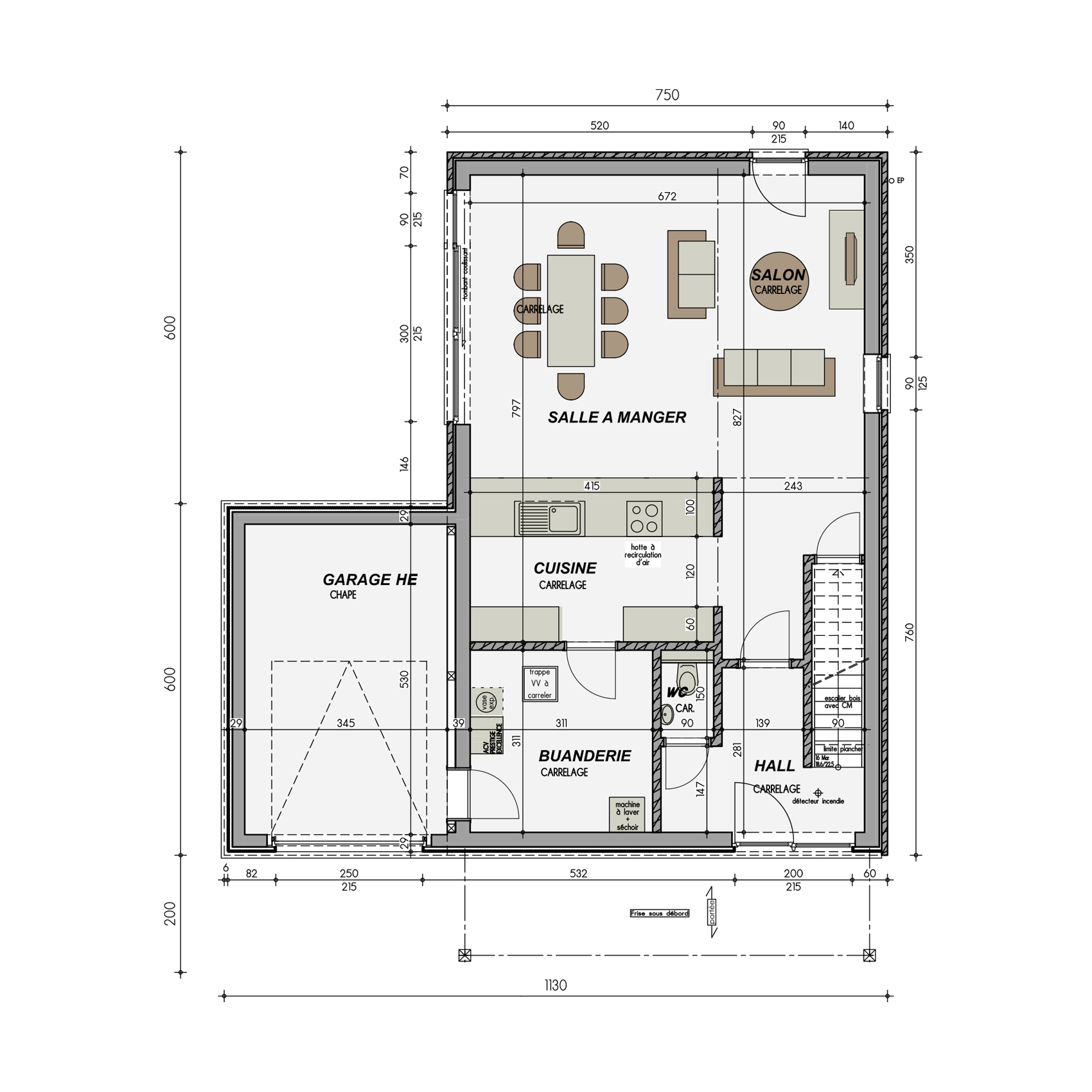
Le premier volume au rez-de chaussée est long de 12m et large de 11,3m. Il se compose d’un séjour salon/salle à mange/cuisine, d’une buanderie, d’un wc et d’un garage.

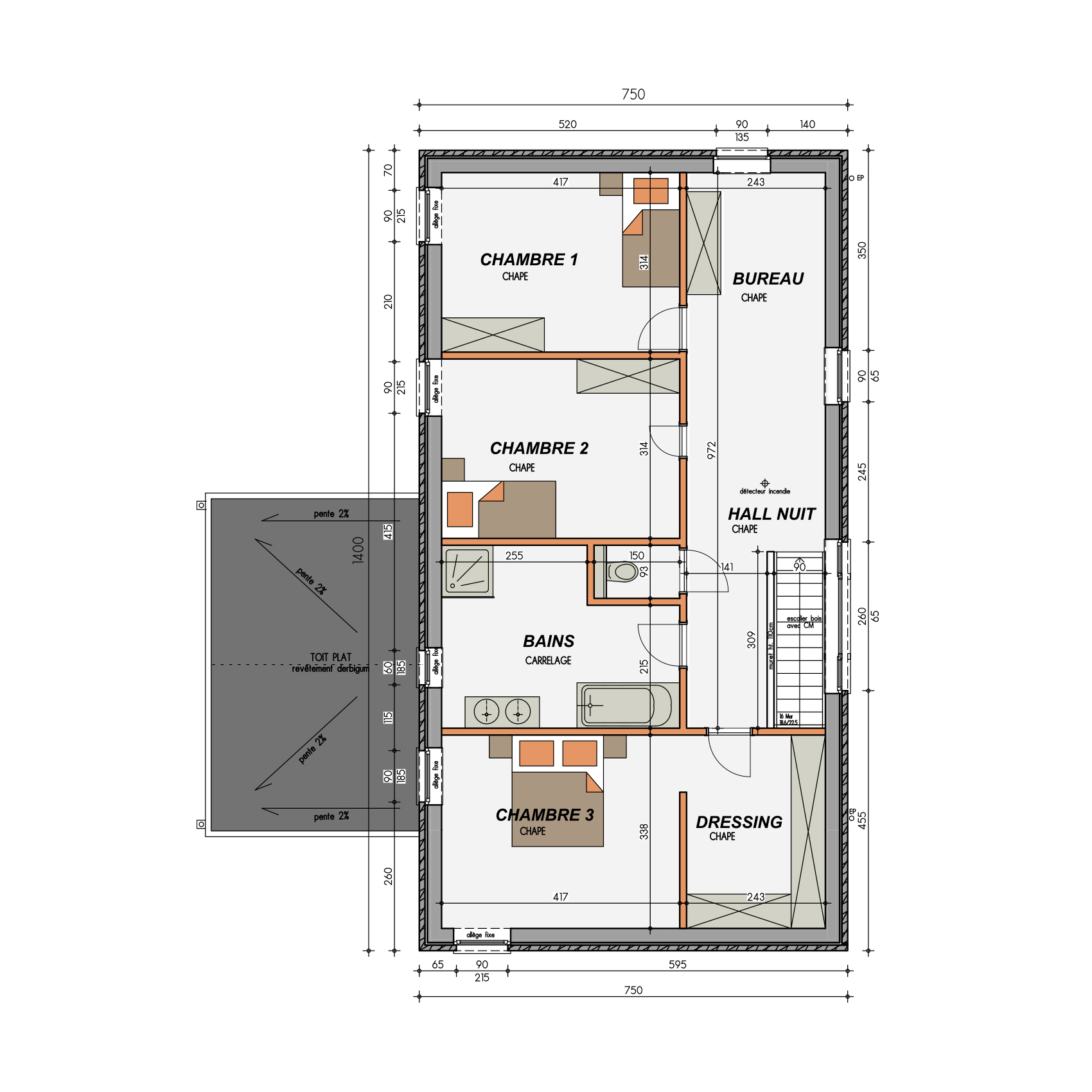
Le second volume à l’étage est long de 14m et large de 7,5m. Il se compose de 3 chambres dont une avec dressing, d’une salle de bain/douche, d’un coin bureau et d’un wc.

Sa surface habitable est de 195 m².

Fidèle à nos engagements, ce modèle inspirant associe durabilité et performances énergétiques de pointe.

Si cet avant-projet vous plaît, nous nous ferons un plaisir de l’adapter à votre mode de vie.

Cette maison à ossature bois vous inspire ?

àpd 347.000€ htva
Ce prix comprend
  • Les honoraires d’architecte, les frais de coordination de sécurité, la finition clé sur porte
  • L’étude énergétique du bâtiment, les honoraires responsable PEB
  • Le test d’étanchéité à l’air (blower door test)
  • L’étude de sol, conforme au cahier général des charges
Les points forts TOMWOOD
  • Prix fixe garanti
  • 1 seul contrat
  • Garantie Loi Breyne 100%
  • Main d’œuvre intégrée
  • Respect des délais
  • Un service après-vente
  • Un Groupe solide

Visualisez les plans de votre maison d'inspiration SoléaCette maison clé sur porte à ossature bois est conçue avec l'agencement intérieur décrit sur ces plans. Avec l’aide d’un de nos conseillers, vous pouvez l'adapter à votre mode de vie et à votre budget.

Inspiration Soléa Plan rez-de-chausséeInspiration Soléa Plan rez-de-chaussée

Rez-de-chaussée

Inspiration Soléa Plan étageInspiration Soléa Plan étage

étage

Inspiration Soléa Plan façade avantInspiration Soléa Plan façade avant

Façade avant

Inspiration Soléa Plan façade arrièreInspiration Soléa Plan façade arrière

Façade arrière

Inspiration Soléa Plan pignon gaucheInspiration Soléa Plan pignon gauche

Pignon gauche

Inspiration Soléa Plan pignon droitInspiration Soléa Plan pignon droit

Pignon droit

Réalisations Tomwood

Nos maisons en bois “clés en main”
nos clients vous en parlent.
Nos maisons en bois “clés en main” nos clients vous en parlent.
"Reportage à Messancy"
Messancy
"Reportage à Limelette"
Limelette
"Reportage à Chiny"
Chiny
"Une maison qui raconte une histoire…"
Uccle
Venez ressentir le bien-être
d’une maison à ossature bois
dans notre maison expo
 
Maison expo de Braine-le-Comte
Prêts à vous lancer ?Évaluons ensemble les options qui s’offrent à vous

Vous souhaitez nous contacter au sujet de notre inspirationSoléa

FF - Tomwood Inspirations
Avez-vous un terrain ?

*Champ obligatoire

Vous souhaitez recevoir les plans de notre inspirationSoléa

FF - Tomwood PDF Inspirations
Avez-vous un terrain ?

*Champ obligatoire

Vous souhaitez nous contacter au sujet de notre inspirationSoléa

Avez-vous un terrain ?
*Champ obligatoire

Vous souhaitez recevoir les plans de notre inspirationSoléa

Avez-vous un terrain ?
*Champ obligatoire

Ma maison en Belgique

Dans quel pays souhaitez-vous construire votre maison Tomwood ?
Avez-vous un terrain ?
Quel est le sujet de votre demande ?
*Champ obligatoire