Inspiration Orévia

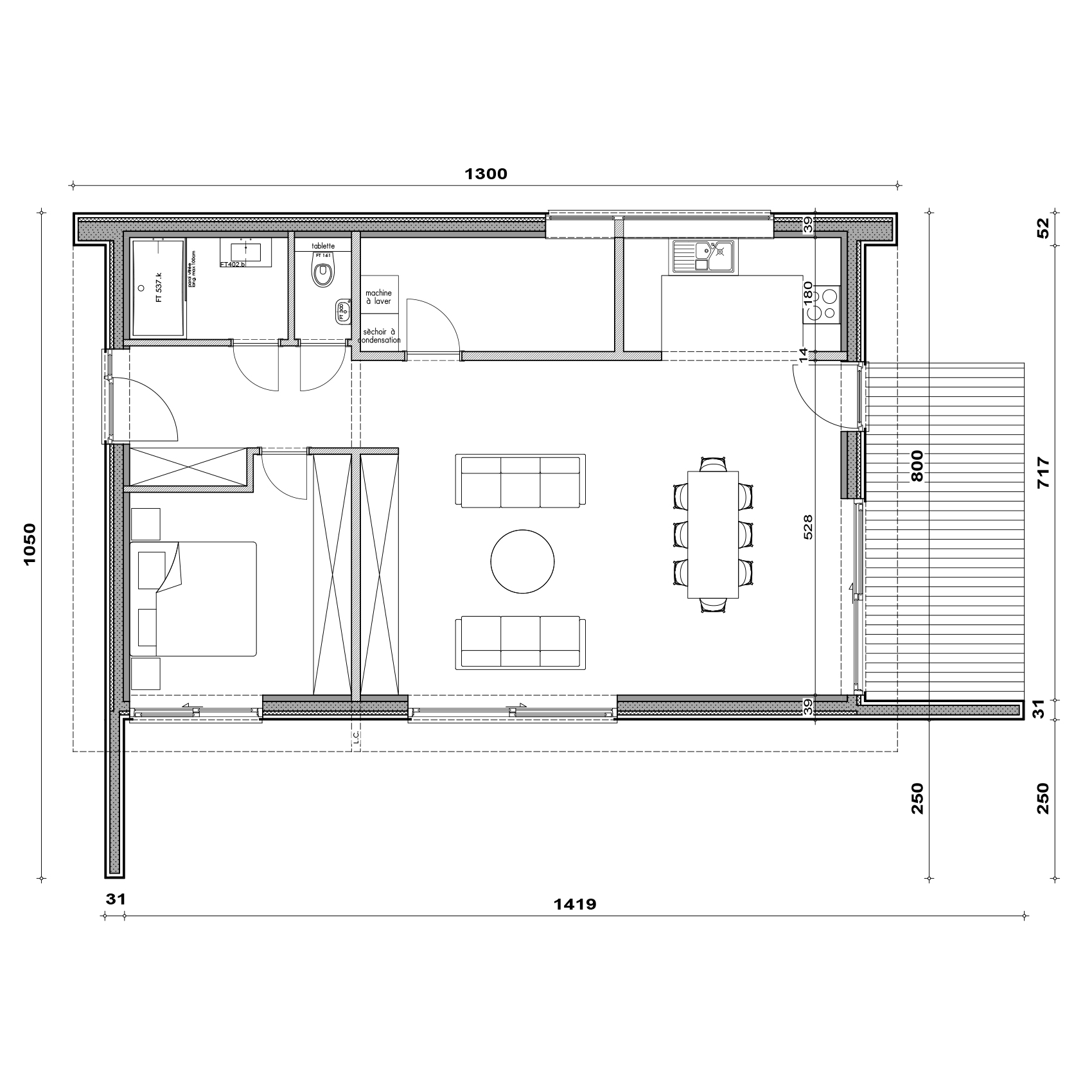
La maison clé sur porte Orévia est conçue en une surface rectangulaire de 14,19m de long et 10,50m de large. Elle dispose d’un séjour lumineux salon/salle à manger, d’un espace cuisine, d’une buanderie et d’1 chambre et d’un wc. Sa surface habitable est de 96 m².

Le style architectural se veut moderne et épuré. L’intérieur est aménagé dans un esprit loft.

Fidèle à nos engagements, ce modèle inspirant associe durabilité et performances énergétiques de pointe.

Si cet avant-projet vous plaît, nous nous ferons un plaisir de l’adapter à votre mode de vie.

Cette maison à ossature bois vous inspire ?

àpd 278.500€ htva
Ce prix comprend
  • Les honoraires d’architecte, les frais de coordination de sécurité, la finition clé sur porte
  • L’étude énergétique du bâtiment, les honoraires responsable PEB
  • Le test d’étanchéité à l’air (blower door test)
  • L’étude de sol, conforme au cahier général des charges
Les points forts TOMWOOD
  • Prix fixe garanti
  • 1 seul contrat
  • Garantie Loi Breyne 100%
  • Main d’œuvre intégrée
  • Respect des délais
  • Un service après-vente
  • Un Groupe solide
tomwood-inspiration-orevia-arriere
Inspiration Orévia

Visualisez les plans de votre maison d'inspiration OréviaCette maison clé sur porte à ossature bois est conçue avec l'agencement intérieur décrit sur ces plans. Avec l’aide d’un de nos conseillers, vous pouvez l'adapter à votre mode de vie et à votre budget.

Inspiration Orévia Plan rez-de-chausséeInspiration Orévia Plan rez-de-chaussée

Rez-de-chaussée

Inspiration Orévia Plan façade avantInspiration Orévia Plan façade avant

Façade avant

Inspiration Orévia Plan façade arrièreInspiration Orévia Plan façade arrière

Façade arrière

Inspiration Orévia Plan pignon gaucheInspiration Orévia Plan pignon gauche

Pignon gauche

Inspiration Orévia Plan pignon droitInspiration Orévia Plan pignon droit

Pignon droit

Réalisations Tomwood

Nos maisons en bois “clés en main”
nos clients vous en parlent.
Nos maisons en bois “clés en main” nos clients vous en parlent.
"Reportage à Messancy"
Messancy
"Reportage à Limelette"
Limelette
"Reportage à Chiny"
Chiny
"Une maison qui raconte une histoire…"
Uccle
Venez ressentir le bien-être
d’une maison à ossature bois
dans notre maison expo
 
Maison expo de Braine-le-Comte
Prêts à vous lancer ?Évaluons ensemble les options qui s’offrent à vous

Vous souhaitez recevoir les plans de notre inspirationOrévia

FF - Tomwood PDF Inspirations
Avez-vous un terrain ?

*Champ obligatoire

Vous souhaitez nous contacter au sujet de notre inspirationOrévia

Avez-vous un terrain ?
*Champ obligatoire

Vous souhaitez recevoir les plans de notre inspirationOrévia

Avez-vous un terrain ?
*Champ obligatoire

Ma maison en Belgique

Dans quel pays souhaitez-vous construire votre maison Tomwood ?
Avez-vous un terrain ?
Quel est le sujet de votre demande ?
*Champ obligatoire