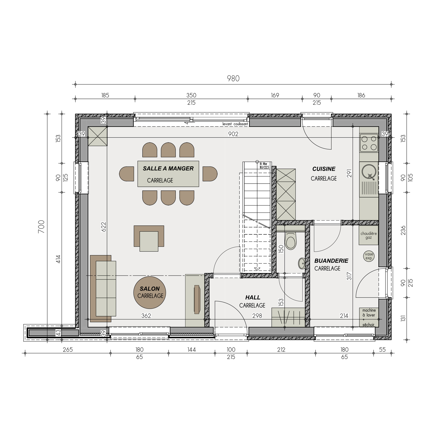
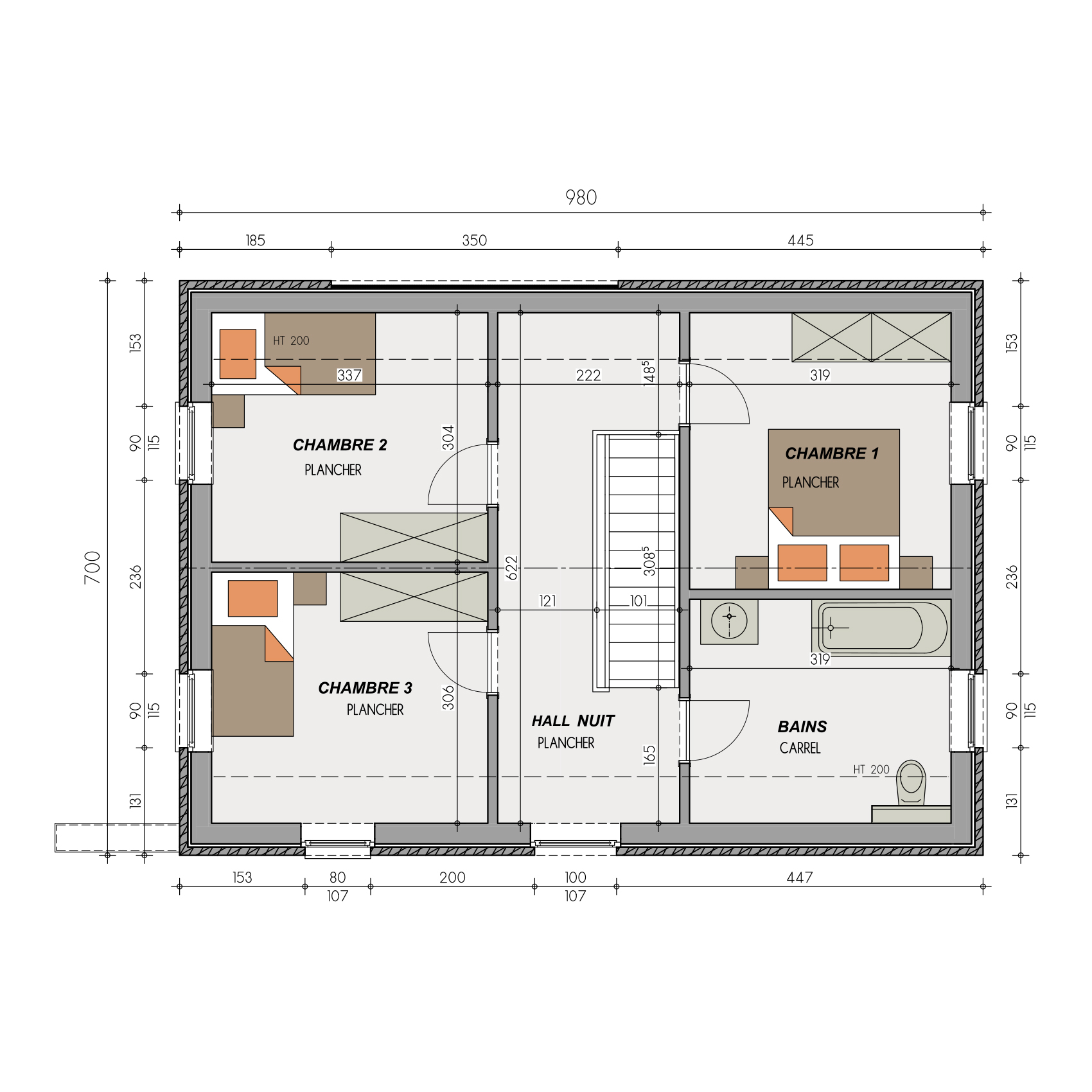
La maison clé sur porte Héliora est conçue en une surface rectangulaire de 9,80m de long et 7m de large.
Au rez-de-chaussée, elle dispose d’une cuisine, d’un séjour salon/salle à manger, d’une buanderie et d’un wc.
À l’étage, de 3 chambres dont une avec dressing et d’une salle de bain.
Sa surface habitable est de 137 m².
Fidèle à nos engagements, ce modèle inspirant associe durabilité et performances énergétiques de pointe.
Si cet avant-projet vous plaît, nous nous ferons un plaisir de l’adapter à votre mode de vie.
Cette maison à ossature bois vous inspire ?











