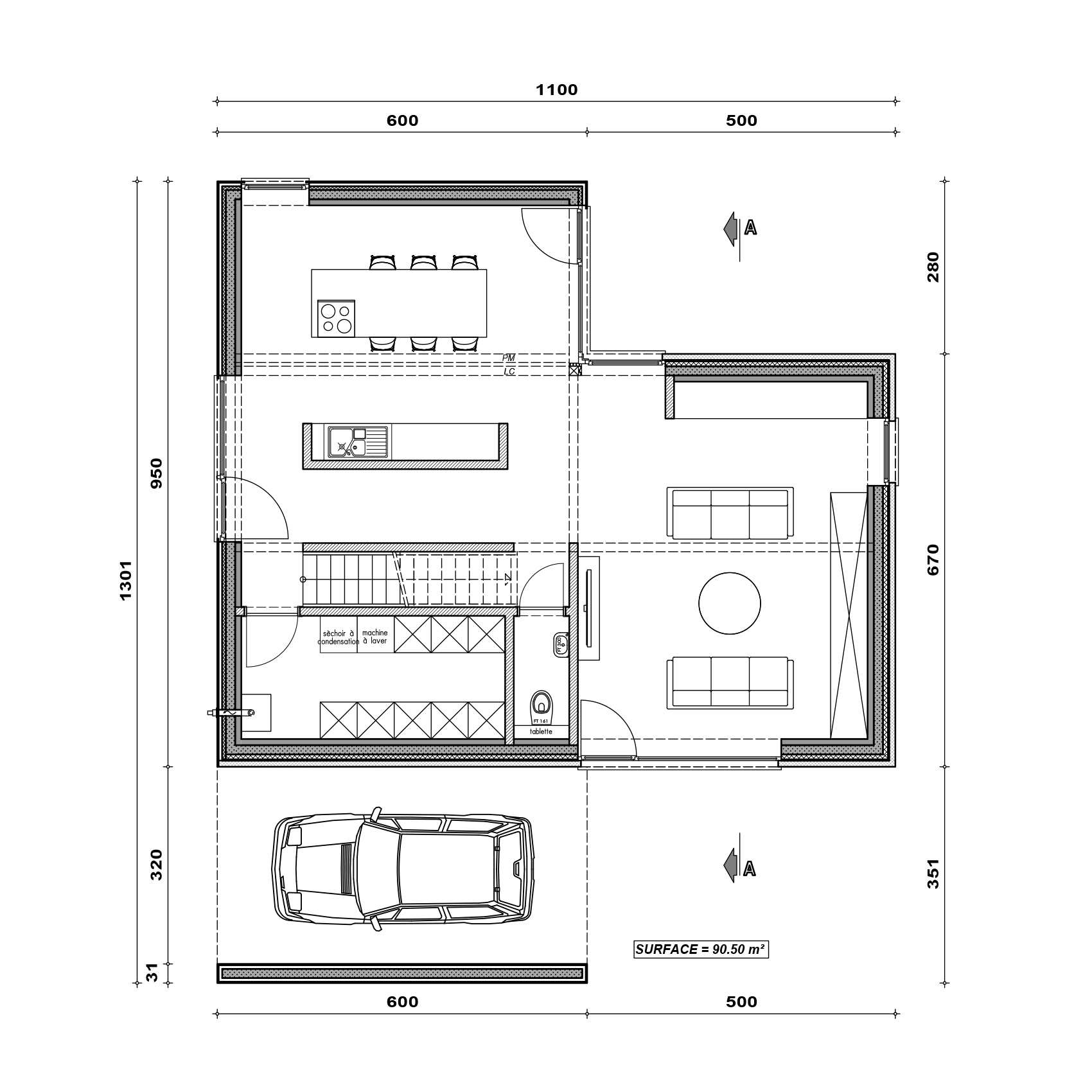
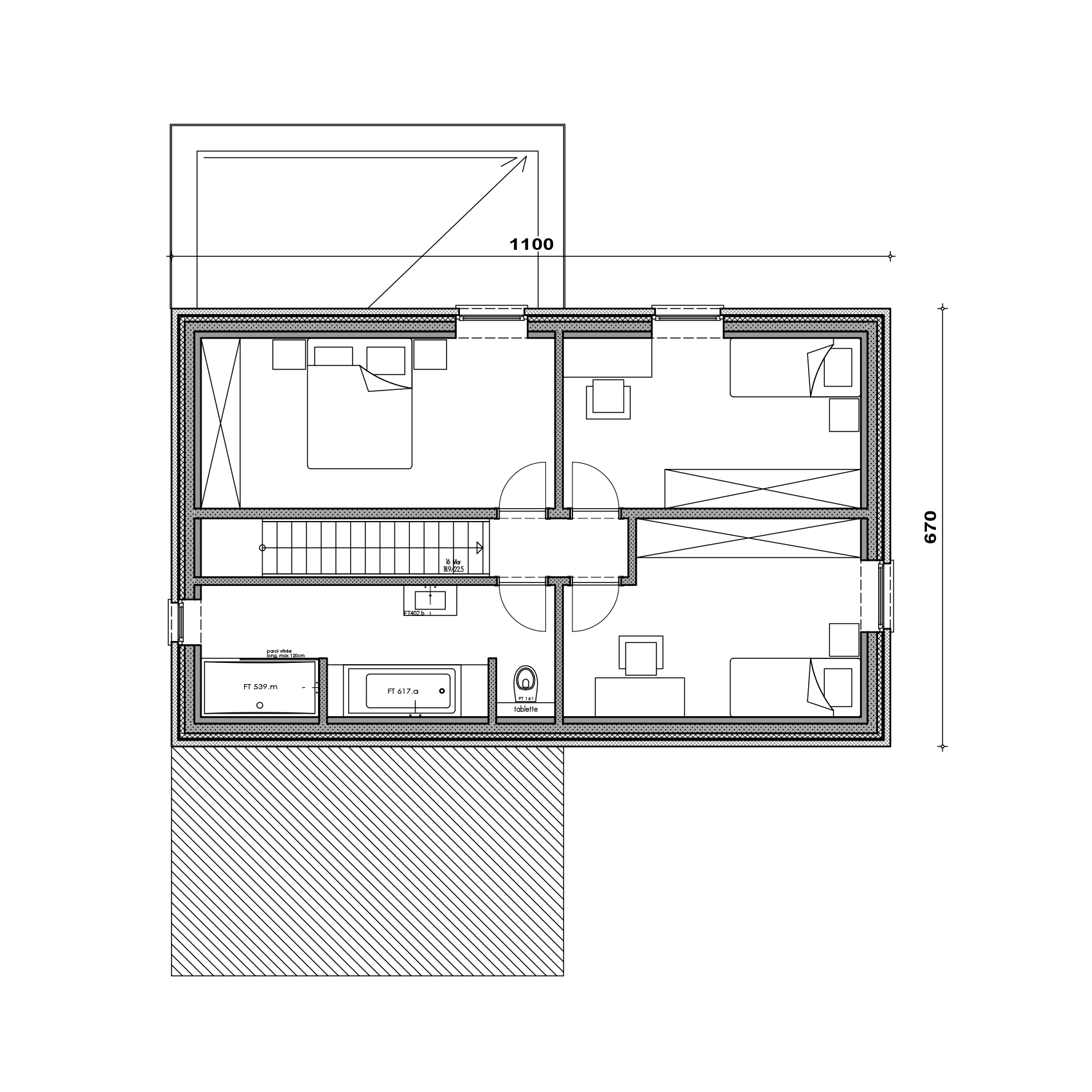
La maison clé sur porte Evanéa est conçue en 2 surfaces rectangulaires imbriquées + un carport.
Le premier volume au rez-de chaussée est long de 13m et large de 11m. Il se compose d’un séjour salon/salle à mange/cuisine, d’une buanderie, d’un wc.
Le second volume à l’étage est long de 11m et large de 6,7m. Il se compose de 3 chambres, d’une salle de bain/douche et d’un wc.
Sa surface habitable est de 164 m².
Fidèle à nos engagements, ce modèle inspirant associe durabilité et performances énergétiques de pointe.
Si cet avant-projet vous plaît, nous nous ferons un plaisir de l’adapter à votre mode de vie.
Cette maison à ossature bois vous inspire ?













