Inspiration Elyssia

La maison clé sur porte Elyssia est conçue en une surface rectangulaire de 10m de long et 8m de large.

Au rez-de-chaussée, elle dispose d’un séjour salon/cuisine/salle à manger, d’une buanderie et d’un wc.

À l’étage, de 3 chambres et d’une salle de douche.

Sa surface habitable est de 101 m².

Fidèle à nos engagements, ce modèle inspirant associe durabilité et performances énergétiques de pointe.

Si cet avant-projet vous plaît, nous nous ferons un plaisir de l’adapter à votre mode de vie.

Cette maison à ossature bois vous inspire ?

àpd 249.500€ htva
Ce prix comprend
  • Les honoraires d’architecte, les frais de coordination de sécurité, la finition clé sur porte
  • L’étude énergétique du bâtiment, les honoraires responsable PEB
  • Le test d’étanchéité à l’air (blower door test)
  • L’étude de sol, conforme au cahier général des charges
Les points forts TOMWOOD
  • Prix fixe garanti
  • 1 seul contrat
  • Garantie Loi Breyne 100%
  • Main d’œuvre intégrée
  • Respect des délais
  • Un service après-vente
  • Un Groupe solide
newline-07-arriere
tomwood-inspiration-elyssia-arriere

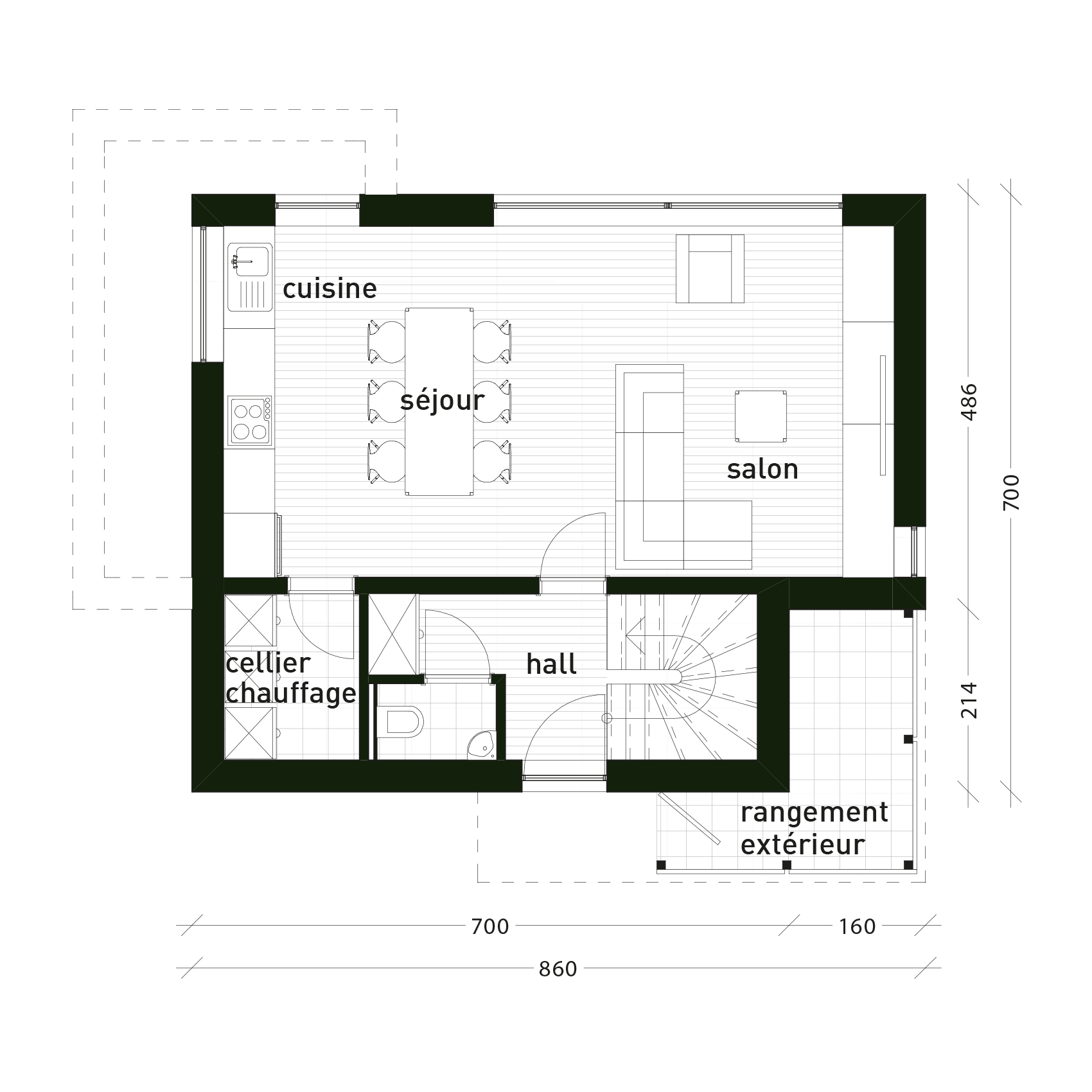
Visualisez les plans de votre maison d'inspiration ElyssiaCette maison clé sur porte à ossature bois est conçue avec l'agencement intérieur décrit sur ces plans. Avec l’aide d’un de nos conseillers, vous pouvez l'adapter à votre mode de vie et à votre budget.

Inspiration Elyssia Plan rez-de-chausséeInspiration Elyssia Plan rez-de-chaussée

Rez-de-chaussée

Inspiration Elyssia Plan étageInspiration Elyssia Plan étage

étage

Inspiration Elyssia Plan façade avantInspiration Elyssia Plan façade avant

Façade avant

Inspiration Elyssia Plan façade arrièreInspiration Elyssia Plan façade arrière

Façade arrière

Inspiration Elyssia Plan pignon gaucheInspiration Elyssia Plan pignon gauche

Pignon gauche

Inspiration Elyssia Plan pignon droitInspiration Elyssia Plan pignon droit

Pignon droit

Réalisations Tomwood

Nos maisons en bois “clés en main”
nos clients vous en parlent.
Nos maisons en bois “clés en main” nos clients vous en parlent.
"Reportage à Messancy"
Messancy
"Reportage à Limelette"
Limelette
"Reportage à Chiny"
Chiny
"Une maison qui raconte une histoire…"
Uccle
Venez ressentir le bien-être
d’une maison à ossature bois
dans notre maison expo
 
Maison expo de Braine-le-Comte
Prêts à vous lancer ?Évaluons ensemble les options qui s’offrent à vous

Vous souhaitez recevoir les plans de notre inspirationElyssia

FF - Tomwood PDF Inspirations
Avez-vous un terrain ?

*Champ obligatoire

Vous souhaitez nous contacter au sujet de notre inspirationElyssia

Avez-vous un terrain ?
*Champ obligatoire

Vous souhaitez recevoir les plans de notre inspirationElyssia

Avez-vous un terrain ?
*Champ obligatoire

Ma maison en Belgique

Dans quel pays souhaitez-vous construire votre maison Tomwood ?
Avez-vous un terrain ?
Quel est le sujet de votre demande ?
*Champ obligatoire