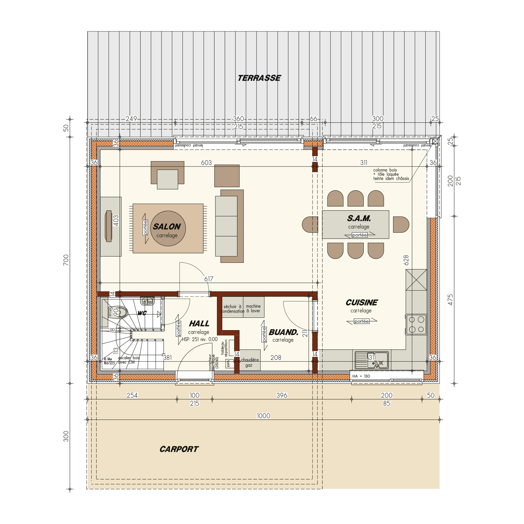
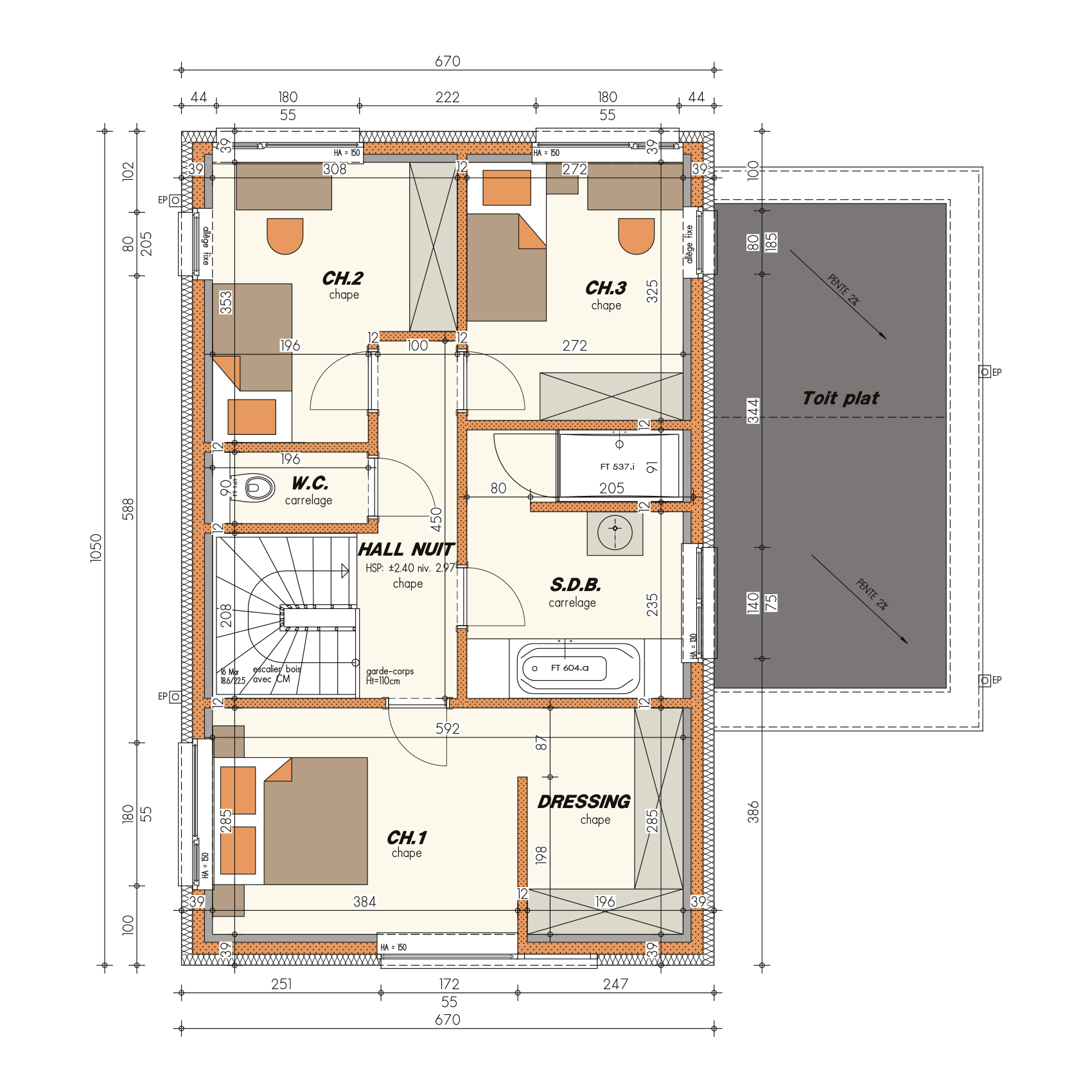
La maison clé sur porte Elyora est conçue en 2 surfaces rectangulaires imbriquées.
Le premier volume au rez-de chaussée est long de 10m et large de 7m. Il se compose d’un séjour salon/salle à manger, d’une cuisine, d’une buanderie et d’une wc.
Le second volume à l’étage est long de 10,5m et large de 6,7m. Il se compose de 3 chambres dont une avec dressing, d’une salle de bain/douche et d’un wc.
Sa surface habitable est de 147 m².
Fidèle à nos engagements, ce modèle inspirant associe durabilité et performances énergétiques de pointe.
Si cet avant-projet vous plaît, nous nous ferons un plaisir de l’adapter à votre mode de vie.
Cette maison à ossature bois vous inspire ?











