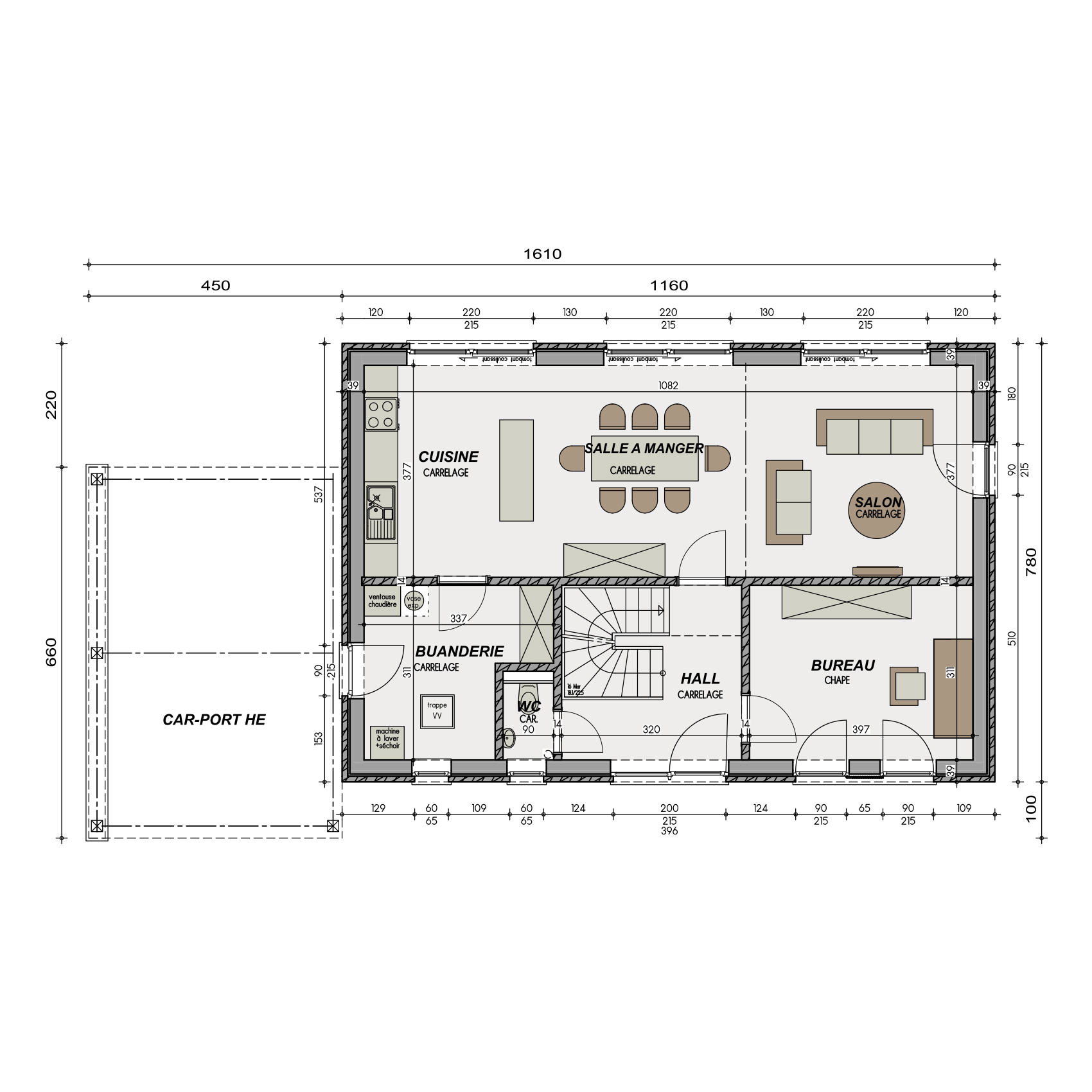
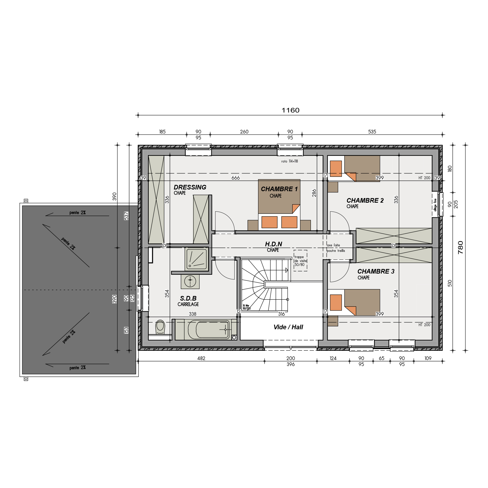
La maison clé sur porte Cléora est conçue en une surface rectangulaire de 11,60m de long et 7,80m de large.
Au rez-de-chaussée, elle dispose d’un séjour salon/cuisine/salle à manger, d’un bureau, d’une buanderie et d’un wc.
À l’étage, de 3 chambres dont 1 avec dressing et d’une salle de bain/douche.
Sa surface habitable est de 181 m².
Fidèle à nos engagements, ce modèle inspirant associe durabilité et performances énergétiques de pointe.
Si cet avant-projet vous plaît, nous nous ferons un plaisir de l’adapter à votre mode de vie.
Cette maison à ossature bois vous inspire ?











