Inspiration Auréa

La maison clé sur porte Auréa est conçue en 2 surfaces rectangulaires imbriquées.

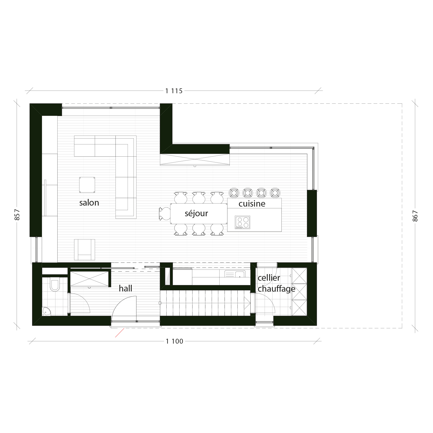
Le premier volume au rez-de chaussée est long de 11m et large de 8,57m. Il se compose d’un séjour salon/salle à mange/cuisine, d’une buanderie et d’un wc.

Le second volume à l’étage est long de 14,30m et large de 7m. Il se compose de 4 chambres dont une avec dressing, d’une salle de bain, d’une salle de douche, d’un coin bureau et d’un wc.

Sa surface habitable est de 159 m².

Fidèle à nos engagements, ce modèle inspirant associe durabilité et performances énergétiques de pointe.

Si cet avant-projet vous plaît, nous nous ferons un plaisir de l’adapter à votre mode de vie.

Cette maison à ossature bois vous inspire ?

àpd 374.500€ htva
Ce prix comprend
  • Les honoraires d’architecte, les frais de coordination de sécurité, la finition clé sur porte
  • L’étude énergétique du bâtiment, les honoraires responsable PEB
  • Le test d’étanchéité à l’air (blower door test)
  • L’étude de sol, conforme au cahier général des charges
Les points forts TOMWOOD
  • Prix fixe garanti
  • 1 seul contrat
  • Garantie Loi Breyne 100%
  • Main d’œuvre intégrée
  • Respect des délais
  • Un service après-vente
  • Un Groupe solide
Inspiration Auréa
tomwood-inspiration-aurea-interieure

Visualisez les plans de votre maison d'inspiration AuréaCette maison clé sur porte à ossature bois est conçue avec l'agencement intérieur décrit sur ces plans. Avec l’aide d’un de nos conseillers, vous pouvez l'adapter à votre mode de vie et à votre budget.

Inspiration Auréa Plan rez-de-chausséeInspiration Auréa Plan rez-de-chaussée

Rez-de-chaussée

Inspiration Auréa Plan étageInspiration Auréa Plan étage

étage

Inspiration Auréa Plan façade avantInspiration Auréa Plan façade avant

Façade avant

Inspiration Auréa Plan façade arrièreInspiration Auréa Plan façade arrière

Façade arrière

Inspiration Auréa Plan pignon gaucheInspiration Auréa Plan pignon gauche

Pignon gauche

Inspiration Auréa Plan pignon droitInspiration Auréa Plan pignon droit

Pignon droite

Réalisations Tomwood

Nos maisons en bois “clés en main”
nos clients vous en parlent.
Nos maisons en bois “clés en main” nos clients vous en parlent.
"Reportage à Messancy"
Messancy
"Reportage à Limelette"
Limelette
"Reportage à Chiny"
Chiny
"Une maison qui raconte une histoire…"
Uccle
Venez ressentir le bien-être
d’une maison à ossature bois
dans notre maison expo
 
Maison expo de Braine-le-Comte
Prêts à vous lancer ?Évaluons ensemble les options qui s’offrent à vous

Vous souhaitez recevoir les plans de notre inspirationAuréa

FF - Tomwood PDF Inspirations
Avez-vous un terrain ?

*Champ obligatoire

Vous souhaitez nous contacter au sujet de notre inspirationAuréa

Avez-vous un terrain ?
*Champ obligatoire

Vous souhaitez recevoir les plans de notre inspirationAuréa

Avez-vous un terrain ?
*Champ obligatoire

Ma maison en Belgique

Dans quel pays souhaitez-vous construire votre maison Tomwood ?
Avez-vous un terrain ?
Quel est le sujet de votre demande ?
*Champ obligatoire