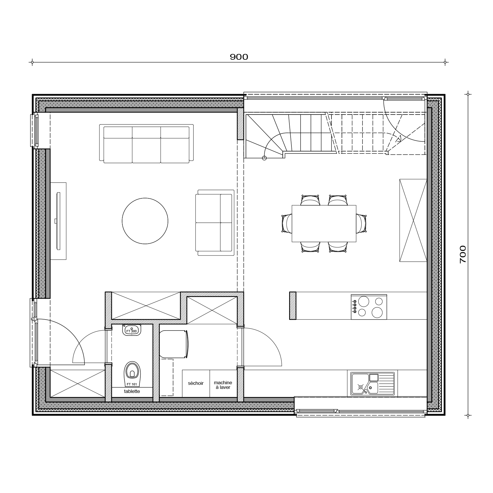
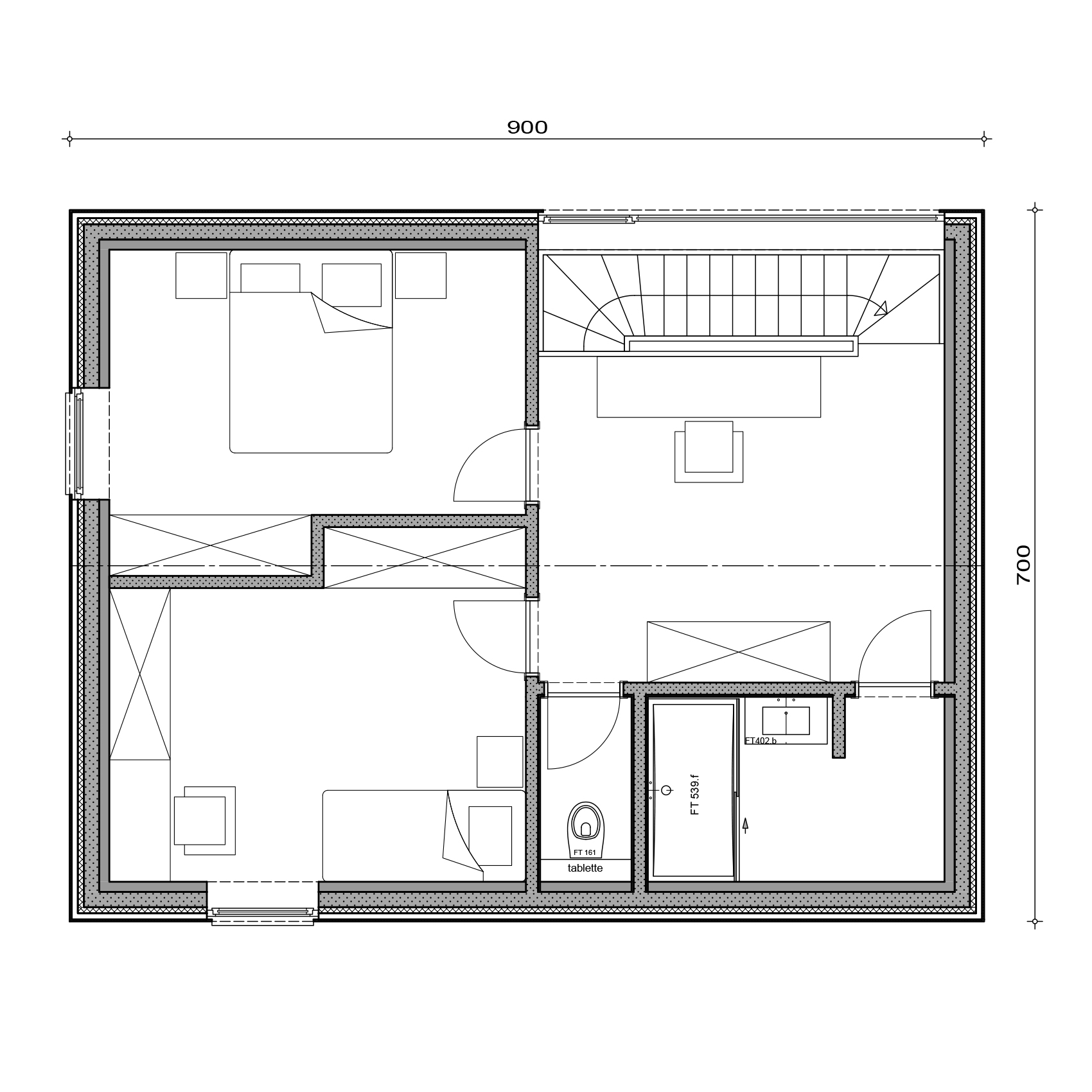
La maison clé sur porte Albéa est conçue en une surface rectangulaire de 9m de long et 7m de large.
Au rez-de-chaussée, elle dispose d’un séjour salon/cuisine/salle à manger, d’une buanderie et d’un wc.
À l’étage, de 2 chambres, d’une salle de douche et un coin bureau.
Sa surface habitable est de 126 m².
Fidèle à nos engagements, ce modèle inspirant associe durabilité et performances énergétiques de pointe.
Si cet avant-projet vous plaît, nous nous ferons un plaisir de l’adapter à votre mode de vie.
Cette maison à ossature bois vous inspire ?














